Bazos.sk - Inzercia, inzeráty
... inzercia pre každého
Čo: PSČ (miesto): Okolie: km Cena od: - do:
Hlavná stránka > Služby > Ostatné > Inzerát č. 186530399

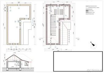
Ponúkam projektovanie jednoduchých stavieb

- [15.12. 2025]
Zmazať/ Upraviť/ Topovať

Ponúkam kompletné služby projektovania pre všetky stupne projektovej dokumentácie pre jednoduché stavby, prístavby, rekonštrukcie, rodinné domy.
-architektonické štúdie
-dokumentácie pre ohlásenie stavby
-dokumentácia pre stavebné povolenie
-realizačné projekty
-prístavby, rekonštrukcie, rodinné domy
Všetky projekty spracovávam v súlade s aktuálnymi normami a legislatívou.
Pôsobím po celom Slovensku, takže ma môžete kontaktovať nezávisle od vašej lokality – rád Vám pomôžem s projektami aj v iných regiónoch.
Cena dohodou, záleží od rozsahu projektu
projektant.statik13@gmail.com

Meno:

Patrik

Telefón:

094... zobraz číslo

Lokalita:Mapa010 01 Žilina

Videlo:

51 ľudí

Cena:

V texte
Užívateľ
Všetky inzeráty a hodnotenie užívateľa
ObľúbenéPridať do obľúbených
SpamOznačiť zlý inzerát
Chybná kategóraOznačiť chybnú kategóriu inzerátu
VytlačiťVytlačiť inzerát
FacebookZdieľajte na Facebooku
MailOdporučiť kamarátovi
PodobnéVyhľadať podobné inzeráty

Kontaktovať inzerenta e-mailom

Kontaktovať e-mailom môže iba overený užívateľ.
Overenie je zadarmo.

Vaše telefónne číslo *





Podobné inzeráty
vertikutacia, rotavatorovanie, rylovanie, strihanie vertikutacia, rotavatorovanie, rylovanie, strihanie - [18.12. 2025]
Som vyštudovaný zah. architekt svoju prácu beriem ako poslanie, robím ju s radosťou a dávam si záležať. Aktualne jesenne údržby: vertikutácia, kosenie, hnojenie, vypuštanie závlah, strihanie, rylovanie, rotavatorovanie. Ďalej Ponukám služby: - kosenie okrasných trávnikov, pozemkov a in ...


40 €
Nitra
949 01
34 x
Označiť zlý inzerát Chybnú kategóriu Ohodnotiť užívateľa Zmazať/Upraviť/Topovať
Zabezpečovacia a inteligentná technika Zabezpečovacia a inteligentná technika - TOP - [24.12. 2025]
Ponukám: - montáž, inštalácie alarmov a kamerových systémov, videovrátnikov do bytu, domu, kancelárie. Aj tzv. bezdrôtové riešenia. Sme certifikovaným montážnym partnerom značiek Hikvision, Jablotron, Fibaro, Loxone, TP-Link a sme držiteľom licencie technickej služby. - kompletné elektroinš ...


Dohodou
Bratislava
811 04
151 x
Označiť zlý inzerát Chybnú kategóriu Ohodnotiť užívateľa Zmazať/Upraviť/Topovať
Fotovoltika, silnoprúd, slaboprúd, elektroinštalačné práce Fotovoltika, silnoprúd, slaboprúd, elektroinštalačné práce - TOP - [24.12. 2025]
Ponukám kompletné elektroinštalačné práce rodinných domov, bytových a nebytových priestorov, fotovoltické (fotovoltaika) systémy na kľúč. Silnoprúd: drážkovanie, ťahanie káblov, rekonštrukčné práce, výmena a zapojenie zásuviek / vypínačov, zapájanie rozvádzačov, zapájanie spotrebičov, bleskozvody ...


Dohodou
Dunajská Streda
929 01
119 x
Označiť zlý inzerát Chybnú kategóriu Ohodnotiť užívateľa Zmazať/Upraviť/Topovať
Profesionálny CAD dizajn – 3D modelovanie, konštrukcia, výkr Profesionálny CAD dizajn – 3D modelovanie, konštrukcia, výkr - [13.11. 2025]
Profesionálny CAD dizajn – 3D modelovanie, konštrukcia, výkresová dokumentácia, digitalizácia a projektovanie. Ponúkam kompletné služby v oblasti CAD dizajnu, konštrukcie a technickej dokumentácie. Opieram sa o viac ako 10 rokov praxe v automotive aj non-automotive sektore. Mám bohaté skúsenosti ...


18 €
Prešov
080 01
136 x
Označiť zlý inzerát Chybnú kategóriu Ohodnotiť užívateľa Zmazať/Upraviť/Topovať
PROJEKT REKONŠTRUKCIE/BÚRANIE PROJEKT REKONŠTRUKCIE/BÚRANIE - [10.11. 2025]
Potrebujete projektanta na rekonštrukciu, prístavbu, nadstavbu alebo búranie budovy? Ponúkam odborné služby v oblasti projektovania rekonštrukcií, prístavieb a nadstavieb budov. Vypracujem komplexnú projektovú dokumentáciu, technické výkresy, vizualizácie a pripravím všetky potrebné podklady pre ...


Dohodou
Nové Mesto n.Váhom
915 01
93 x
Označiť zlý inzerát Chybnú kategóriu Ohodnotiť užívateľa Zmazať/Upraviť/Topovať
Orez stromov – odborný rez, starostlivosť o trávniky,  úprav Orez stromov – odborný rez, starostlivosť o trávniky, úprav - TOP - [9.11. 2025]
Orez stromov – odborný rez, starostlivosť o trávniky, úprava záhrad, projektovanie Ponúkam orez stromov všetkých druhov (odobrný rez- zmladzovací rez, úpravný rez, udržiavací rez) Strihanie živých plotov, tují, okrasných rastlín, obnova záhonov, zakladanie nových záhonov, vyvýšených záhonov ...


Dohodou
Košice
040 01
187 x
Označiť zlý inzerát Chybnú kategóriu Ohodnotiť užívateľa Zmazať/Upraviť/Topovať


©2025 Bazoš - Inzercia, bazár Ostatné
Pomoc, Otázky, Hodnotenie, Kontakt, Reklama, Podmienky, Ochrana údajov, RSS,

Inzeráty Služby celkom: 17213, za 24 hodín: 1673

Mapa kategórií, Najvyhľadávanejšie výrazy
Krajiny: Slovensko, Česká republika, Poľsko, Rakúsko