Projektant
- [25.12. 2025]Zmazať/ Upraviť/ Topovať










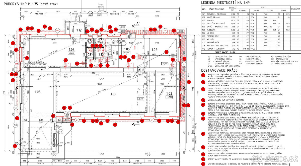
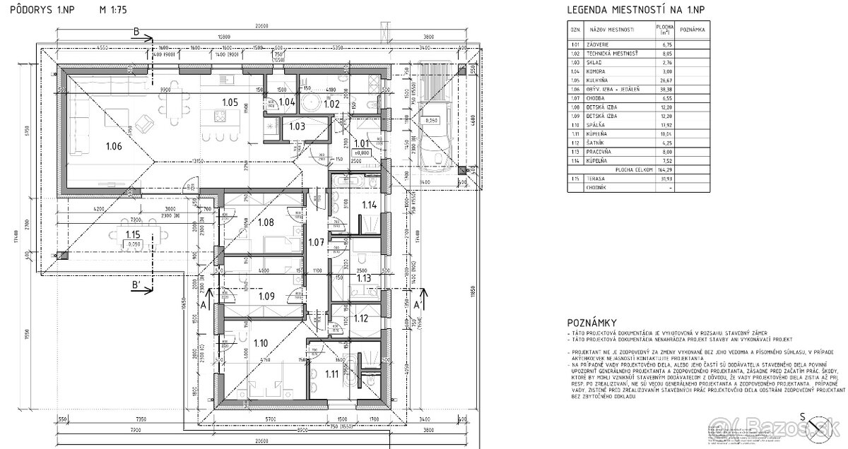
Vyhotovím pre vás stavebný zámer, projekt stavby, vykonávací projekt pre drobnú stavbu alebo jednoduchú stavbu (podľa nového stavebného zákona 25/2025). Viem vám pomôcť aj s Portálom výstavby a Správou o prerokovaní stavebného zámeru. Ako subdodávka viem ponúknuť svoje služby pre spracovanie projektovej dokumentácie vyhradených stavieb. Spracovanie možné v rámci celého Slovenska.
projekt, projektovanie, architekt, ohláška, overenie projektu, drobná, stavba, výkresy, povolenie, stavebné, stavba, dom, stavebné povolenie, územné rozhodnutie
projekt, projektovanie, architekt, ohláška, overenie projektu, drobná, stavba, výkresy, povolenie, stavebné, stavba, dom, stavebné povolenie, územné rozhodnutie
|
| |||||||||||||||||||||||||||||||
Kontaktovať inzerenta e-mailom
Kontaktovať e-mailom môže iba overený užívateľ.
Overenie je zadarmo.
Vaše telefónne číslo *
Kontaktovať e-mailom môže iba overený užívateľ.
Overenie je zadarmo.
Vaše telefónne číslo *
Podobné inzeráty
Vaša projektantka - [8.1. 2026]Nepáčia sa Vám katalógové rodinné domy a zároveň nechcete čakať na projekt rok alebo viac? Ponúkam Vám za bezkonkurenčnú cenu a za minimálnu čakaciu dobu komplet projekt k stavebnému povolaniu.
Dohodou
Komárno
945 01
945 01
14 x
Označiť zlý inzerát Chybnú kategóriu Ohodnotiť užívateľa Zmazať/Upraviť/Topovať
Akreditovaný stavebný rozpočet, rozpočty, rozpočtár, ponuky - [3.1. 2026]• Vypracujem
→ stavebný rozpočet (pre banky, verejný sektor, osobné účely, podľa cenníka/ alebo tendrom )
→ cenovú ponuku
→ výkaz výmer
→ súpis prác
→ ocenenie výkazu
→ kontrola cien s aktuálnou cenníkovou databázou alebo naopak staršou databázou
• Na základe
→ výkazu výmer
→ projektovej ...
Dohodou
Trenčín
911 01
911 01
51 x
Označiť zlý inzerát Chybnú kategóriu Ohodnotiť užívateľa Zmazať/Upraviť/Topovať
AST Asociácia svetelných technikov, projekty osvetlenia. - [30.12. 2025]Vitajte v AST, špecializujeme sa na svetelno-technické návrhy a kontroly výpočtov osvetlenia, aby sme vám pomohli dosiahnuť optimálne a efektívne využitie svetla vo vašich priestoroch a zabránili tým možným komplikáciám zo strany RÚVZ.,
- návrh osvetlenia interiérov: priemyselné objekty, budovy s ...
V texte
Nitra
949 01
949 01
34 x
Označiť zlý inzerát Chybnú kategóriu Ohodnotiť užívateľa Zmazať/Upraviť/Topovať
AST Asociácia svetelných technikov, projekty osvetlenia.. - [30.12. 2025]Vitajte v AST, špecializujeme sa na svetelno-technické návrhy a kontroly výpočtov osvetlenia, aby sme vám pomohli dosiahnuť optimálne a efektívne využitie svetla vo vašich priestoroch a zabránili tým možným komplikáciám zo strany RÚVZ.,
- návrh osvetlenia interiérov: priemyselné objekty, budovy s ...
V texte
Trnava
917 01
917 01
34 x
Označiť zlý inzerát Chybnú kategóriu Ohodnotiť užívateľa Zmazať/Upraviť/Topovať
AST Asociácia svetelných technikov, projekty osvetlenia.,., - [30.12. 2025]Vitajte v AST, špecializujeme sa na svetelno-technické návrhy a kontroly výpočtov osvetlenia, aby sme vám pomohli dosiahnuť optimálne a efektívne využitie svetla vo vašich priestoroch a zabránili tým možným komplikáciám zo strany RÚVZ.,
- návrh osvetlenia interiérov: priemyselné objekty, budovy s ...
V texte
Bratislava
811 01
811 01
32 x
Označiť zlý inzerát Chybnú kategóriu Ohodnotiť užívateľa Zmazať/Upraviť/Topovať
AST Asociácia svetelných technikov, projekty osvetlenia ---- - [29.12. 2025]Vitajte v AST, špecializujeme sa na svetelno-technické návrhy a kontroly výpočtov osvetlenia, aby sme vám pomohli dosiahnuť optimálne a efektívne využitie svetla vo vašich priestoroch a zabránili tým možným komplikáciám zo strany RÚVZ.,
- návrh osvetlenia interiérov: priemyselné objekty, budovy s ...
V texte
Nové Zámky
940 02
940 02
75 x
Označiť zlý inzerát Chybnú kategóriu Ohodnotiť užívateľa Zmazať/Upraviť/Topovať
Revízny technik-špecialista§24 VTZ elektrického/projektant - TOP - [9.1. 2026]Revízny technik §24 VTZ elektrického E1A,B bez obmedzenia napätia, vrátane výbuchu ATEX
Potrebujete revíznu správu alebo projektovú dokumentáciu pre Váš dom, byt, EVSE-nabíjaciu stanicu pre elektromobil,elektrické spotrebiče,náradie,bleskozvod, fotovoltiku, elektrický rozvádzač alebo prípojku ? (+ ...
Dohodou
Nitra
949 01
949 01
119 x
Označiť zlý inzerát Chybnú kategóriu Ohodnotiť užívateľa Zmazať/Upraviť/Topovať
Stavebné práce - TOP - [9.1. 2026]Ponúkame Vám
❎Pokládku
▪️Zámkovej dlažby
▪️obrubníky
▪️v cene od 14e/m2
❎Oplotenia pozemkov
❎Zateplenie fasády
▪️v ponuke naše lešenie 450m2 alebo aj možnosť vášho
▪️v cene od 21e/m2
❎Hrubé stavby
▪️Nosné murivo
▪️Deliace murivo (priečky)
❎Stavby na kľúč 🔑 možnosť projektanta
❎Materiály z ...
Dohodou
Trenčín
911 01
911 01
56 x
Označiť zlý inzerát Chybnú kategóriu Ohodnotiť užívateľa Zmazať/Upraviť/Topovať
Stavebné práce - TOP - [9.1. 2026]Ponúkame Vám
❎Pokládku
▪️Zámkovej dlažby
▪️obrubníky
▪️v cene od 14e/m2
❎Oplotenia pozemkov
❎Zateplovanie fasády
▪️v ponuke naše lešenie 450m2 alebo aj možnosť vášho
▪️v cene od 21e/m2
❎Hrubé stavby
▪️nosné murivo
▪️deliace murivo (priečky)
❎Stavby na kľúč 🔑 možnosť projektanta
❎Materiál ...
Dohodou
Považská Bystrica
017 01
017 01
46 x
Označiť zlý inzerát Chybnú kategóriu Ohodnotiť užívateľa Zmazať/Upraviť/Topovať
Architekt, projektant, vizualizácie, projektová dokumentácia - [22.12. 2025]H - Som projektant pozemných stavieb z Prešova, pôsobím na celom Slovensku.
Ponúkam Vám komplexné architektonické a projekčné práce, projekty:
- projekty bytových domov
- projekty radových rodinných domov
- projekty rodinných domov
- projekty drevodomov, drevostavieb - návrh, projekt, výr ...
Dohodou
Bratislava
811 01
811 01
56 x
Označiť zlý inzerát Chybnú kategóriu Ohodnotiť užívateľa Zmazať/Upraviť/Topovať